
vila s výhľadom
Oáza pokoja na veľkom pozemku. Takto by sa dal charakterizovať návrh tohto rodinného domu, ktorý obsahuje kompletnú vybavenosť pre náročného klienta. Bazén pod strechou, wellness a množstvo priestoru pre aktivity na záhrade.
rok: 2023 lokalita: okres Senec typ: čisté línie , prestrešená terasa a vstup, sklo, bazén,

Radi navrhneme rovnako jedinečný projekt aj pre Vás. Stačí, ak nás kontaktujete.

Už len krok a môže byť Váš. Stačí, ak nás kontaktujete.
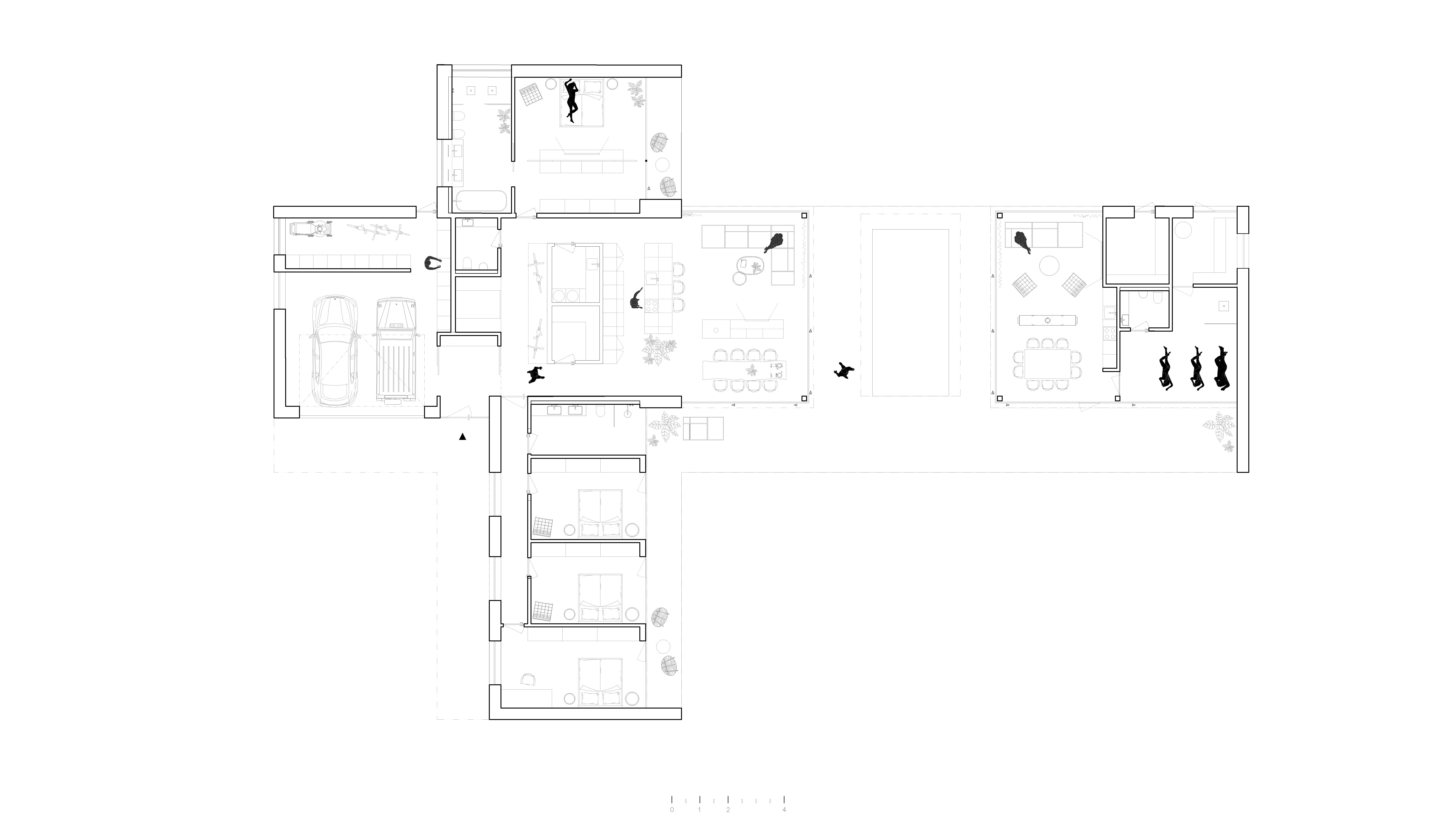
Dispozičné riešenie:
Pôdorys bol navrhnutý do tvaru kríža, kde každé krídlo ma svoju vlastnú funkciu.
Západné krídlo tvorí garáž, hlavný vstup a technická miestnosť. Funkcia južného krídla je primárne súkromná na ubytovanie hostí a rodiny, severné krídlo tvorí samostatnú oddelenú jednotku hlavnej spálne so šatníkom, veľkou kúpeľňou a súkromnou terasou.
Jadro domu tvoria komunikačné priestory, ktoré sú využité aj ako galéria. Najväčšie západné krídlo vytvára spoločenské priestory otvorenej obývačky s kuchyňou, ktoré sú plynulo prepojené s vonkajšou terasou, bazénom a altánkom s wellnesom.


Autori projektu
.webp)














