Náročné riešenie pre klienta, ktorý mal od začiatku jasnú predstavu o budúcich priestoroch..
rok: 2023 lokalita: okres šamorín typ: čisté línie , prestrešená terasa a vstup, garáž pre 4 autá.
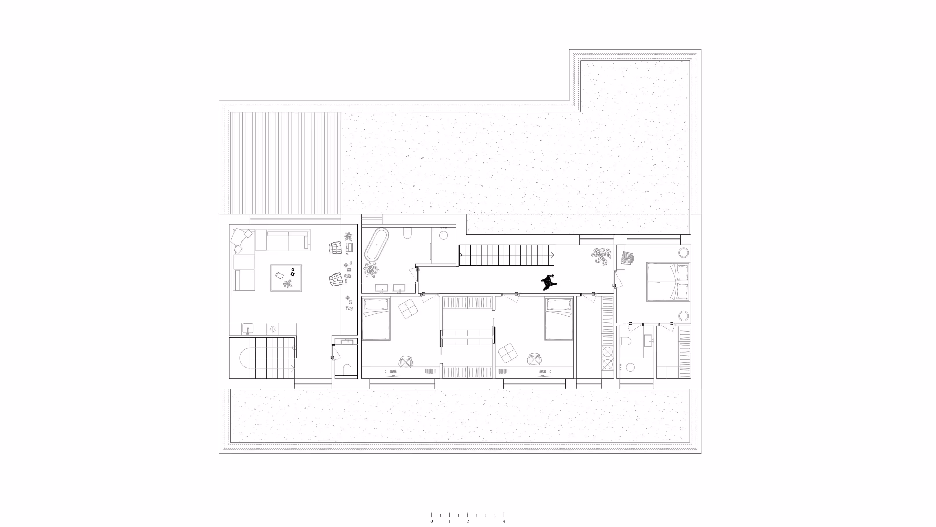
Rodinný dom, ktorý v sebe ukrýva naozaj dostatok miesta pre každého z členov rodiny. Na prvom nadzemnom podlaží sa nachádza garáž pre 4 osobné autá, viacero skladov, denný priestor s bohatou výmerou a plne vybavený spálňový apartmán s dvomi kúpeľňami.

Na druhom nadzemnom podlaží sa nachádzajú spláňe pre deti, hosťovská izba a osobitný prietsor pre trávenie voľného času so samostatným vstupom.


Projektová dokumentácia pre stavebné povolenie je vypracovaná s dôrazom na vysokú mieru realizačnej detailnosti. Obsahuje všetky nevyhnutné informácie pre získanie územného / stavebného povolenia, vrátane vyjadrení a iných administratívnych dokumentov. Zvláštnu pozornosť venujeme aj dôležitým stavebným detailom, ktoré sú kľúčové pre úspešnú prípravu a následnú realizáciu stavby. Naším cieľom je poskytnúť komplexný a precízny súbor materiálov, ktorý zabezpečí nielen formálne schválenie, ale aj efektívnu a bezproblémovú realizáciu projektu.
Projektová dokumentácia obsahuje
- Technické a sprievodné správy všetkých častí
- Zastavovací plán osadenia stavby na pozemok
- Podklad pre geodetické zameranie a katastrálne vyňatie
- Koordinačnú situáciu pripojení rodinného domu k inž. sieťam
- Architektonicko stavebné riešenie v realizačnej podrobnosti
- Statiku nosných konštrukcií v realizačnej podrobnosti so všetkými výstužami a tvarmi
- Projekt vodovodov a kanalizácii v realizačnej podrobnosti + prípojky na siete
- Projekt vykurovania v realizačnej podrobnosti
- Projekt elektroinštalácií, bleskozvodov, projekt elektrickej prípojky a schémy rozvádzača
- Projekt centrálnej alebo decentrálnej rekuperácie v realizačnej podrobnosti
- Projekt protipožiarneho zabezpečenia stavby
- Energetické hodnotenie stavby v triede A0
Výstupom projektovej dokumentácie je 5 tlačených sád a dokumentácia v pdf.
Keďže každý stavebný úrad postupuje podľa svojich zvyklostí a kreatívnych nápadov, počas celého trvania procesu získavania stavebného povolenia máte k projektu našu plnú podporu vo forme konzultácii.
Ako prebieha výber a úprava katalógového domu
Zvolíte si dom z našej ponuky. Overíme vhodnosť pre váš pozemok a rozpočet. K začiatku potrebujete územnoplánovaciu informáciu, dáta o sieťach a (pri svahovitom pozemku) geodetické zameranie.
Projekt vieme upraviť podľa vás – dispozícia, okná, technológie, materiály. Rozsah a cena zmien sa dohodnú vopred.
Vypracujeme kompletný balík dokumentácie pre stavebné povolenie:
- Architektúra (pôdorysy, rezy, pohľady, osadenie)
- Statika, elektro, voda, kúrenie, energetika
Projekt zohľadňuje všetky normy a podmienky územného plánu.
Ako prebieha návrh rodinného domu
Stretneme sa, obhliadneme pozemok a preberieme vaše predstavy. Pošleme vám dotazník a vy pripravíte vizuálne inšpirácie. Zabezpečíte tiež potrebné dokumenty o pozemku (územnoplánovacia info, inžinierske siete, geodetické zameranie).
Vypracujeme návrh s ohľadom na funkciu, štýl, pozemok a rozpočet. Nasleduje konzultácia, kde doladíme detaily podľa vašich pripomienok. Výsledkom je finálna štúdia s pôdorysmi, vizualizáciami a konceptom domu — dodaná ako tlačená brožúra.
Vytvoríme technickú dokumentáciu (výkresy, rezy, detaily). Po vašom schválení ju odovzdáme špecialistom (statika, elektro, voda, požiarna bezpečnosť). Projekt následne skompletizujeme do finálneho balíka pre podanie na úrad.
Ako prebieha návrh interiéru
Osobne alebo online si prejdeme vaše očakávania, rozpočet, štýl a funkčné požiadavky. Získame podklady (pôdorys, foto) a vizuálne inšpirácie.
Navrhneme ideálne rozmiestnenie nábytku, funkčné zóny a štýlový koncept (farebnosť, materiály, moodboardy).
Pripravíme realistické vizualizácie. Po konzultácii návrh doladíme podľa vašich pripomienok — od materiálov po osvetlenie.
Vypracujeme technickú dokumentáciu pre realizáciu — elektroinštalácie, rozvody, podlahy, obklady, osvetlenie. Súčasťou sú aj konkrétne odporúčania na produkty.
Ak máte záujem o nábytok na mieru, pripravíme detailné stolárske výkresy s rozmermi, materiálmi a technickými riešeniami.
Na záver spracujeme predbežný rozpočet — vrátane nábytku, svietidiel, podláh, obkladov a prác. Zahrnieme aj odporúčané produkty či cenové hladiny.
Oslovíme overených dodávateľov a spracujeme porovnanie ich ponúk. Odporučíme najvhodnejších podľa ceny, kvality a termínov.
Na požiadanie zabezpečíme odborný dohľad pri realizácii — konzultácie s dodávateľmi, kontrolu detailov a súlad s návrhom.











.avif)
vertikal.avif)




_vertikal.avif)
YX.avif)
