Rodinný dům Ginko patří mezi 5pokojové rodinné domy. Díky flexibilní dispozici je vhodný na rovinaté i mírně svažité pozemky, přičemž poskytuje prostorné, prosvětlené a funkční prostory pro každodenní život celé rodiny. Zastavěná plocha rodinného domu je 138,68 m² a vnitřní užitná plocha domu je 193 m². Doporučená minimální šířka pozemku je od 16 metrů.
Dispoziční řešení
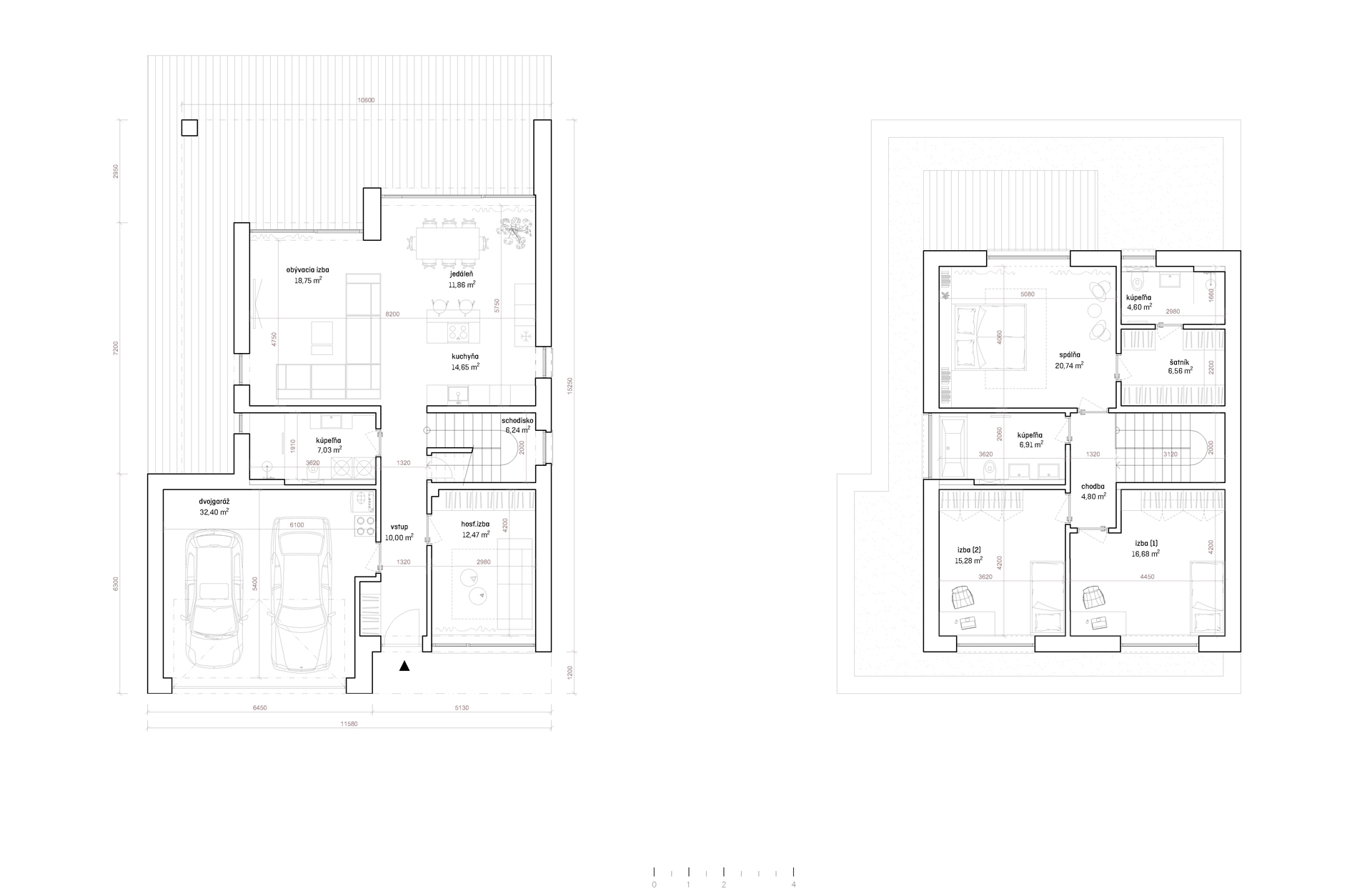
Za přístřeškem vás přivítá vstupní hala s otevřenou šatnou, která zaručuje pohodlí a udržení pořádku hned při příchodu. Pracovna nebo hostinský pokoj poskytuje flexibilní prostor na práci nebo ubytování návštěv. Technická místnost a garáž jsou prakticky propojeny, s přímým průchodem do garáže a se strategicky umístěným WC. Denní část spojuje obývací pokoj, jídelnu a kuchyň do velkorysého a prosvětleného prostoru, ideálního pro rodinný život. Spíž pod schodištěm poskytuje praktické úložiště, které zvyšuje funkčnost celé dispozice.
Patro představuje soukromou a odpočinkovou zónu domu, kde dva dětské pokoje poskytují komfortní a světlé prostředí s jednoduchým přístupem do koupelny na chodbě. Ložnicový apartmán nabízí rodičovskou ložnici s vlastní šatnou a koupelnou, čímž zajišťuje maximální soukromí a pohodlí. Celé patro je navrženo s důrazem na praktická řešení, dostatek úložného prostoru a promyšlené propojení jednotlivých zón, což vytváří ideální podmínky pro moderní rodinný život.
Klíčové benefity:

Technické řešení
Rodinný dům Ginko je nízkoenergetický objekt vybavený moderními technologiemi pro úsporu energie a maximální komfort bydlení. Vytápění zajišťuje tepelné čerpadlo, přičemž dům je připraven na instalaci krbu, chlazených stropů nebo klimatizace. Efektivní využití přírodních zdrojů podporuje systém sběru a opětovného využití dešťové vody na zavlažování zahrady. Projekt je zároveň připraven na fotovoltaické panely s bateriovým úložištěm a možností nabíjení elektromobilu. Kombinace moderních technologií a kvalitních materiálů zaručuje nízké provozní náklady, pohodlí a dlouhou životnost domu. Ginko tak představuje nejen atraktivní a komfortní místo na bydlení, ale i efektivní a ekologickou investici do budoucnosti.
Projektová dokumentácia pre stavebné povolenie je vypracovaná s dôrazom na vysokú mieru realizačnej detailnosti. Obsahuje všetky nevyhnutné informácie pre získanie územného / stavebného povolenia, vrátane vyjadrení a iných administratívnych dokumentov. Zvláštnu pozornosť venujeme aj dôležitým stavebným detailom, ktoré sú kľúčové pre úspešnú prípravu a následnú realizáciu stavby. Naším cieľom je poskytnúť komplexný a precízny súbor materiálov, ktorý zabezpečí nielen formálne schválenie, ale aj efektívnu a bezproblémovú realizáciu projektu.
Projektová dokumentácia obsahuje
- Technické a sprievodné správy všetkých častí
- Zastavovací plán osadenia stavby na pozemok
- Podklad pre geodetické zameranie a katastrálne vyňatie
- Koordinačnú situáciu pripojení rodinného domu k inž. sieťam
- Architektonicko stavebné riešenie v realizačnej podrobnosti
- Statiku nosných konštrukcií v realizačnej podrobnosti so všetkými výstužami a tvarmi
- Projekt vodovodov a kanalizácii v realizačnej podrobnosti + prípojky na siete
- Projekt vykurovania v realizačnej podrobnosti
- Projekt elektroinštalácií, bleskozvodov, projekt elektrickej prípojky a schémy rozvádzača
- Projekt centrálnej alebo decentrálnej rekuperácie v realizačnej podrobnosti
- Projekt protipožiarneho zabezpečenia stavby
- Energetické hodnotenie stavby v triede A0
Výstupom projektovej dokumentácie je 5 tlačených sád a dokumentácia v pdf.
Keďže každý stavebný úrad postupuje podľa svojich zvyklostí a kreatívnych nápadov, počas celého trvania procesu získavania stavebného povolenia máte k projektu našu plnú podporu vo forme konzultácii.
Jak probíhá výběr a úprava katalogového domu
Dům si můžete vybrat z naší nabídky. Ověříme vhodnost pro vaši nemovitost a rozpočet. Nejprve potřebujete informace o zónování, data o sítích a (v případě šikmého pozemku) geodetické zaměření.
Umíme upravit projekt podle vás — dispozice, okna, technologie, materiály. Rozsah a cena změn jsou dohodnuty předem.
Vypracujeme kompletní balíček dokumentace pro stavební povolení:
- Architektura (půdorysy, sekce, pohledy, posezení)
- Statika, elektro, voda, topení, energie
Projekt zohledňuje všechny normy a podmínky územního plánu.
Jak se provádí návrh rodinného domu
Setkáme se, prohlédneme si spiknutí a přijmeme vaše nápady. Zašleme vám dotazník a vy připravíte vizuální inspirace. Poskytnete také potřebné dokumenty o zemi (územní informace, inženýrské sítě, geodetické zaměření).
Vyvíjíme design s ohledem na funkci, styl, zápletku a rozpočet. Následuje konzultace, kde doladíme podrobnosti podle vašich připomínek. Výsledkem je závěrečná studie s půdorysy, vizualizacemi a koncepcí domu — dodávaná jako tištěná brožura.
Vytvoříme technickou dokumentaci (výkresy, sekce, detaily). Po vašem souhlasu jej předáme odborníkům (statika, elektro, voda, požární bezpečnost). Poté projekt dokončíme do finálního balíčku k odeslání do kanceláře.
Jak se provádí interiérový design
Osobně nebo online projdeme vaše očekávání, rozpočet, styl a funkční požadavky. Získáme základy (půdorys, fotografie) a vizuální inspirace.
Navrhneme ideální uspořádání nábytku, funkčních zón a koncepce stylu (barevné schéma, materiály, náladové desky).
Připravíme realistické vizualizace. Po konzultaci vyladíme návrh dle Vašich připomínek — od materiálů až po osvětlení.
Připravujeme technickou dokumentaci pro realizaci — elektroinstalace, elektroinstalace, podlahy, obklady, osvětlení. Zahrnuty jsou také konkrétní doporučení produktů.
Pokud máte zájem o nábytek na zakázku, připravíme podrobné tesařské výkresy s rozměry, materiály a technickým řešením.
Nakonec zpracujeme předběžný rozpočet — včetně nábytku, osvětlení, podlah, dlažby a prací. Zahrneme také doporučené produkty nebo cenové úrovně.
Ozveme se na ověřené dodavatele a zpracujeme srovnání jejich nabídek. Doporučujeme nejvhodnější podle ceny, kvality a termínů.
Na požádání zajistíme odborný dohled při realizaci — konzultace s dodavateli, kontrolu detailů a shodu s projektem.





.avif)


VERTIK.avif)

YX.avif)


