Rodinný dům Baza, perfektní volba pro moderní rodinný život. Objevte kouzlo moderního bydlení s rodinným domem Baza, ideálním dvoupodlažním 5pokojovým domem navrženým s důrazem na pohodlí, praktičnost a nadčasový styl. Díky flexibilní architektuře je vhodný na rovinaté i mírně svažité pozemky. S energetickou třídou A0 přináší Baza nejen esteticky přitažlivé řešení, ale i mimořádně efektivní a úsporný provoz. Dům je navržen tak, aby mohl být energeticky soběstačný a splňoval nároky moderního, ekologicky uvědomělého bydlení.
Dispoziční řešení
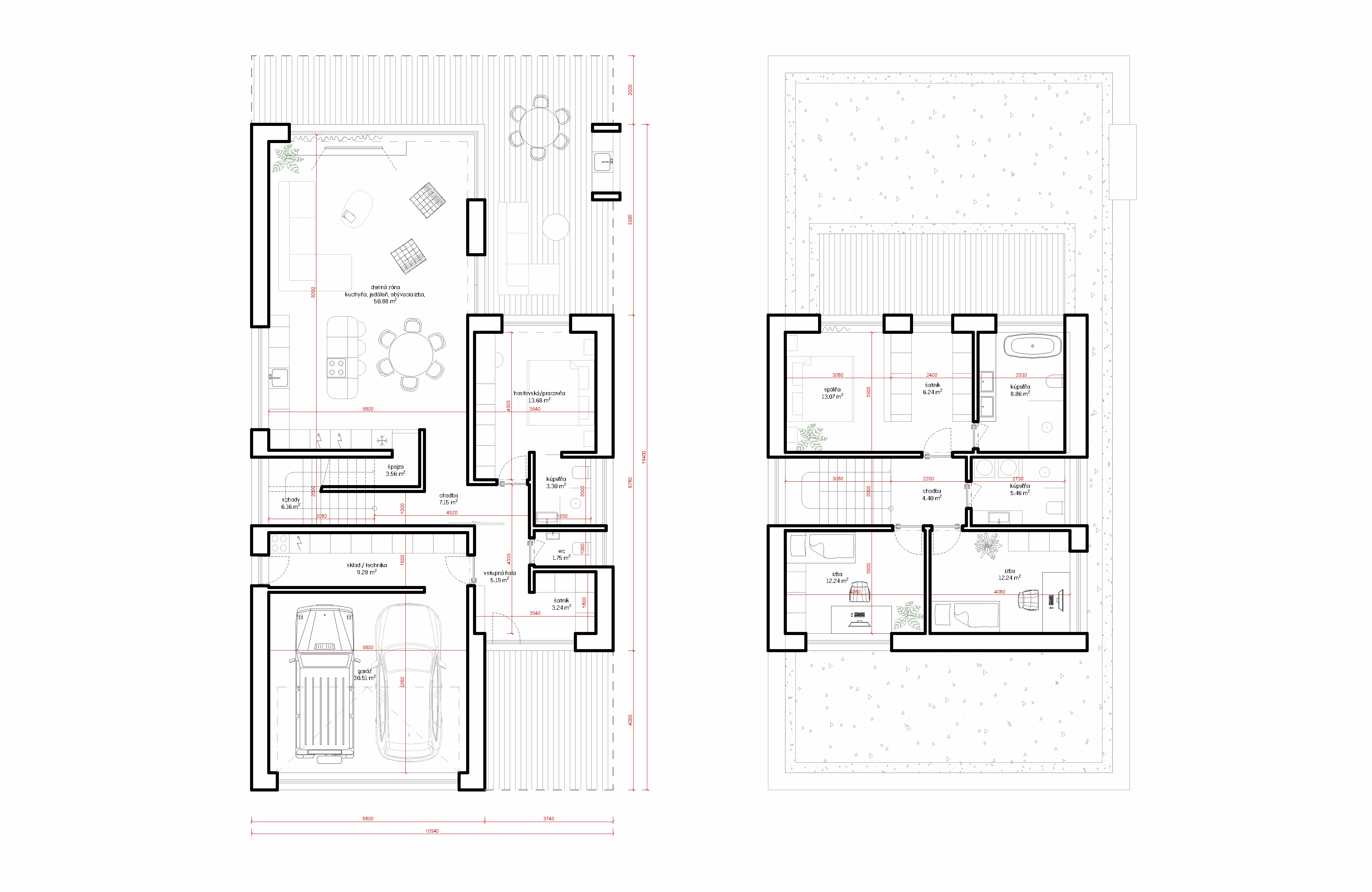
V přízemí vás přivítá vstupní část se šatníkovou sestavou, která je prakticky propojena s garáží přes sklad kombinovaný s technickou místností. Podle vašich potřeb zde může vzniknout pracovna nebo hostinský pokoj, zatímco dominantní částí přízemí je prostor spojující kuchyň, jídelnu a obývací pokoj do příjemného prosvětleného celku. Z této zóny je zajištěn přímý přístup na velkou terasu, která rozšiřuje obytný prostor a vytváří harmonické propojení interiéru s exteriérem.
Na druhém patře je rodičovská ložnice, navržená jako soukromý prostor pro odpočinek a relaxaci, s vlastní šatnou, moderní koupelnou a přímým přístupem na terasu, která poskytuje příjemný venkovní prostor. Dva dětské pokoje nabízejí komfortní a světlé prostředí přizpůsobené potřebám dětí, s dostatkem prostoru na hraní i učení. Koupelna a prádelna jsou prakticky umístěny tak, aby maximalizovaly funkčnost a zjednodušily každodenní život celé rodiny.
Klíčové benefity:
- Promyšlený design: Dokonalé rozdělení denní a noční zóny.
- Pohodlí: Přímý vstup z garáže, dostatek úložného prostoru a šatny.
- Příjemné spojení s exteriérem: Krytá terasa nabízí možnosti relaxace i zábavy.
- Rodičovské soukromí: Ložnice se šatnou, koupelnou a terasou poskytuje luxusní komfort.
- Ekologická řešení: Dům splňuje nejnovější normy nízkoenergetického bydlení.
- Moderní design: Čisté linie, kvalitní materiály a funkční detaily.


Technické řešení
Rodinný dům je realizován z kvalitních keramických tvárnic (cihla) se stropy z monolitického betonu, což zajišťuje dlouhou životnost a výborné tepelněizolační vlastnosti. Komfort vytápění zajišťuje podlahový systém doplněný o žebříkové radiátory v koupelnách. Jako zdroj tepla je možné zvolit tepelné čerpadlo nebo plynový kotel, přičemž konfiguraci technického vybavení je možné přizpůsobit individuálním požadavkům. Dům je vybaven rekuperací, s možností doplnění krbu pro vytvoření příjemné atmosféry, a je předpřipraven na instalaci fotovoltaických panelů pro zvýšení energetické soběstačnosti.
Projektová dokumentácia pre stavebné povolenie je vypracovaná s dôrazom na vysokú mieru realizačnej detailnosti. Obsahuje všetky nevyhnutné informácie pre získanie územného / stavebného povolenia, vrátane vyjadrení a iných administratívnych dokumentov. Zvláštnu pozornosť venujeme aj dôležitým stavebným detailom, ktoré sú kľúčové pre úspešnú prípravu a následnú realizáciu stavby. Naším cieľom je poskytnúť komplexný a precízny súbor materiálov, ktorý zabezpečí nielen formálne schválenie, ale aj efektívnu a bezproblémovú realizáciu projektu.
Projektová dokumentácia obsahuje
- Technické a sprievodné správy všetkých častí
- Zastavovací plán osadenia stavby na pozemok
- Podklad pre geodetické zameranie a katastrálne vyňatie
- Koordinačnú situáciu pripojení rodinného domu k inž. sieťam
- Architektonicko stavebné riešenie v realizačnej podrobnosti
- Statiku nosných konštrukcií v realizačnej podrobnosti so všetkými výstužami a tvarmi
- Projekt vodovodov a kanalizácii v realizačnej podrobnosti + prípojky na siete
- Projekt vykurovania v realizačnej podrobnosti
- Projekt elektroinštalácií, bleskozvodov, projekt elektrickej prípojky a schémy rozvádzača
- Projekt centrálnej alebo decentrálnej rekuperácie v realizačnej podrobnosti
- Projekt protipožiarneho zabezpečenia stavby
- Energetické hodnotenie stavby v triede A0
Výstupom projektovej dokumentácie je 5 tlačených sád a dokumentácia v pdf.
Keďže každý stavebný úrad postupuje podľa svojich zvyklostí a kreatívnych nápadov, počas celého trvania procesu získavania stavebného povolenia máte k projektu našu plnú podporu vo forme konzultácii.
Jak probíhá výběr a úprava katalogového domu
Dům si můžete vybrat z naší nabídky. Ověříme vhodnost pro vaši nemovitost a rozpočet. Nejprve potřebujete informace o zónování, data o sítích a (v případě šikmého pozemku) geodetické zaměření.
Umíme upravit projekt podle vás — dispozice, okna, technologie, materiály. Rozsah a cena změn jsou dohodnuty předem.
Vypracujeme kompletní balíček dokumentace pro stavební povolení:
- Architektura (půdorysy, sekce, pohledy, posezení)
- Statika, elektro, voda, topení, energie
Projekt zohledňuje všechny normy a podmínky územního plánu.
Jak se provádí návrh rodinného domu
Setkáme se, prohlédneme si spiknutí a přijmeme vaše nápady. Zašleme vám dotazník a vy připravíte vizuální inspirace. Poskytnete také potřebné dokumenty o zemi (územní informace, inženýrské sítě, geodetické zaměření).
Vyvíjíme design s ohledem na funkci, styl, zápletku a rozpočet. Následuje konzultace, kde doladíme podrobnosti podle vašich připomínek. Výsledkem je závěrečná studie s půdorysy, vizualizacemi a koncepcí domu — dodávaná jako tištěná brožura.
Vytvoříme technickou dokumentaci (výkresy, sekce, detaily). Po vašem souhlasu jej předáme odborníkům (statika, elektro, voda, požární bezpečnost). Poté projekt dokončíme do finálního balíčku k odeslání do kanceláře.
Jak se provádí interiérový design
Osobně nebo online projdeme vaše očekávání, rozpočet, styl a funkční požadavky. Získáme základy (půdorys, fotografie) a vizuální inspirace.
Navrhneme ideální uspořádání nábytku, funkčních zón a koncepce stylu (barevné schéma, materiály, náladové desky).
Připravíme realistické vizualizace. Po konzultaci vyladíme návrh dle Vašich připomínek — od materiálů až po osvětlení.
Připravujeme technickou dokumentaci pro realizaci — elektroinstalace, elektroinstalace, podlahy, obklady, osvětlení. Zahrnuty jsou také konkrétní doporučení produktů.
Pokud máte zájem o nábytek na zakázku, připravíme podrobné tesařské výkresy s rozměry, materiály a technickým řešením.
Nakonec zpracujeme předběžný rozpočet — včetně nábytku, osvětlení, podlah, dlažby a prací. Zahrneme také doporučené produkty nebo cenové úrovně.
Ozveme se na ověřené dodavatele a zpracujeme srovnání jejich nabídek. Doporučujeme nejvhodnější podle ceny, kvality a termínů.
Na požádání zajistíme odborný dohled při realizaci — konzultace s dodavateli, kontrolu detailů a shodu s projektem.



.avif)
.avif)
.avif)
.avif)
.avif)



.avif)


VERTIK.avif)

YX.avif)


