Rodinný dům pozostává ze tří téměř samostatných celků. Toto členění se projevuje na půdorysném uspořádání, ale i na vnějších tvarech. Geometrie stavby není náhodná a všechny hmoty, které do sebe zapadají, reprezentují jinou funkci.
rok: 2021 lokalita: Senec typ: tvar U, konzolové schodiště, zajímavá geometrie nosných sloupů.
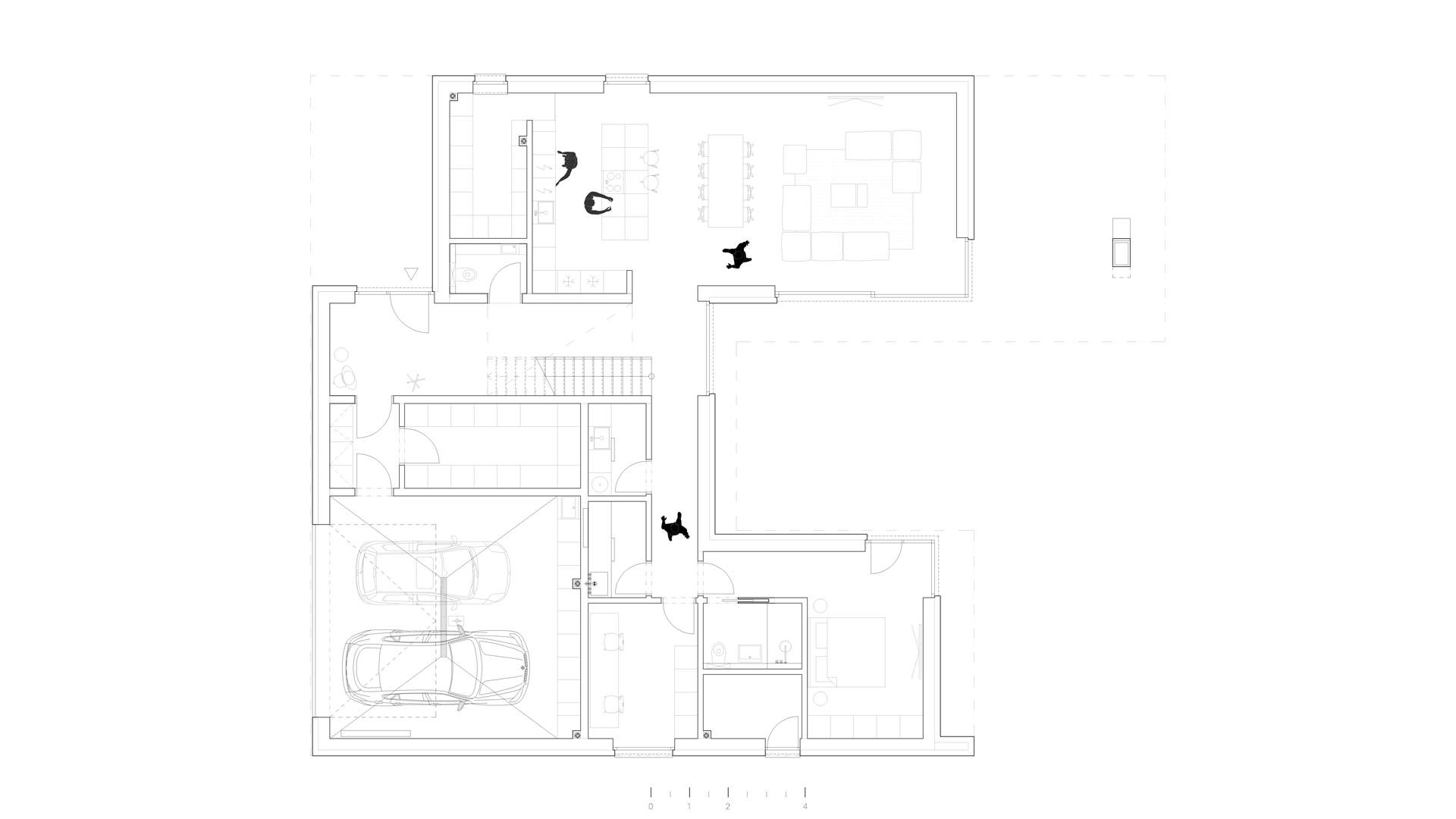
Dispoziční řešení
Hlavní vstup do domu se nachází ve východní části půdorysu 1.NP. Ze vstupní haly se otvírá chodba, na kterou je napojen šatník a prostorná dvojgaráž. Ze vstupní haly se dále dostaneme na toaletu a ke schodišti s galerií. V tomto bodě se dům rozděluje na obytnou zónu a zázemí resp. noční zónu. Denní zóna v pravé části půdorysu pozostává z propojené kuchyně s jídelnou a obývacím pokojem. Za kuchyní se nachází spíž. Přes chodbu se dostaneme do levé části půdorysu 1. NP. Z chodby se otvírá prádelna, technická místnost, menší pracovna a hostinský pokoj s koupelnou. V severní části půdorysu se nachází i sklad přístupný z exteriéru.

Přes konzolové schodiště se dostaneme na 2. NP, kde se nachází noční zóna domu. V pravé části půdorysu 2.NP se nachází dětský pokoj a pracovna. Ve středním traktu se nachází chodba, schodiště a koupelna. V pravé části půdorysu se nachází hlavní ložnicový apartmán s vlastním šatníkem a koupelnou. Obytné místnosti jsou orientovány na západní stranu směrem do zahrady.

Projektová dokumentácia pre stavebné povolenie je vypracovaná s dôrazom na vysokú mieru realizačnej detailnosti. Obsahuje všetky nevyhnutné informácie pre získanie územného / stavebného povolenia, vrátane vyjadrení a iných administratívnych dokumentov. Zvláštnu pozornosť venujeme aj dôležitým stavebným detailom, ktoré sú kľúčové pre úspešnú prípravu a následnú realizáciu stavby. Naším cieľom je poskytnúť komplexný a precízny súbor materiálov, ktorý zabezpečí nielen formálne schválenie, ale aj efektívnu a bezproblémovú realizáciu projektu.
Projektová dokumentácia obsahuje
- Technické a sprievodné správy všetkých častí
- Zastavovací plán osadenia stavby na pozemok
- Podklad pre geodetické zameranie a katastrálne vyňatie
- Koordinačnú situáciu pripojení rodinného domu k inž. sieťam
- Architektonicko stavebné riešenie v realizačnej podrobnosti
- Statiku nosných konštrukcií v realizačnej podrobnosti so všetkými výstužami a tvarmi
- Projekt vodovodov a kanalizácii v realizačnej podrobnosti + prípojky na siete
- Projekt vykurovania v realizačnej podrobnosti
- Projekt elektroinštalácií, bleskozvodov, projekt elektrickej prípojky a schémy rozvádzača
- Projekt centrálnej alebo decentrálnej rekuperácie v realizačnej podrobnosti
- Projekt protipožiarneho zabezpečenia stavby
- Energetické hodnotenie stavby v triede A0
Výstupom projektovej dokumentácie je 5 tlačených sád a dokumentácia v pdf.
Keďže každý stavebný úrad postupuje podľa svojich zvyklostí a kreatívnych nápadov, počas celého trvania procesu získavania stavebného povolenia máte k projektu našu plnú podporu vo forme konzultácii.
Jak probíhá výběr a úprava katalogového domu
Dům si můžete vybrat z naší nabídky. Ověříme vhodnost pro vaši nemovitost a rozpočet. Nejprve potřebujete informace o zónování, data o sítích a (v případě šikmého pozemku) geodetické zaměření.
Umíme upravit projekt podle vás — dispozice, okna, technologie, materiály. Rozsah a cena změn jsou dohodnuty předem.
Vypracujeme kompletní balíček dokumentace pro stavební povolení:
- Architektura (půdorysy, sekce, pohledy, posezení)
- Statika, elektro, voda, topení, energie
Projekt zohledňuje všechny normy a podmínky územního plánu.
Jak se provádí návrh rodinného domu
Setkáme se, prohlédneme si spiknutí a přijmeme vaše nápady. Zašleme vám dotazník a vy připravíte vizuální inspirace. Poskytnete také potřebné dokumenty o zemi (územní informace, inženýrské sítě, geodetické zaměření).
Vyvíjíme design s ohledem na funkci, styl, zápletku a rozpočet. Následuje konzultace, kde doladíme podrobnosti podle vašich připomínek. Výsledkem je závěrečná studie s půdorysy, vizualizacemi a koncepcí domu — dodávaná jako tištěná brožura.
Vytvoříme technickou dokumentaci (výkresy, sekce, detaily). Po vašem souhlasu jej předáme odborníkům (statika, elektro, voda, požární bezpečnost). Poté projekt dokončíme do finálního balíčku k odeslání do kanceláře.
Jak se provádí interiérový design
Osobně nebo online projdeme vaše očekávání, rozpočet, styl a funkční požadavky. Získáme základy (půdorys, fotografie) a vizuální inspirace.
Navrhneme ideální uspořádání nábytku, funkčních zón a koncepce stylu (barevné schéma, materiály, náladové desky).
Připravíme realistické vizualizace. Po konzultaci vyladíme návrh dle Vašich připomínek — od materiálů až po osvětlení.
Připravujeme technickou dokumentaci pro realizaci — elektroinstalace, elektroinstalace, podlahy, obklady, osvětlení. Zahrnuty jsou také konkrétní doporučení produktů.
Pokud máte zájem o nábytek na zakázku, připravíme podrobné tesařské výkresy s rozměry, materiály a technickým řešením.
Nakonec zpracujeme předběžný rozpočet — včetně nábytku, osvětlení, podlah, dlažby a prací. Zahrneme také doporučené produkty nebo cenové úrovně.
Ozveme se na ověřené dodavatele a zpracujeme srovnání jejich nabídek. Doporučujeme nejvhodnější podle ceny, kvality a termínů.
Na požádání zajistíme odborný dohled při realizaci — konzultace s dodavateli, kontrolu detailů a shodu s projektem.





.avif)


VERTIK.avif)

YX.avif)


