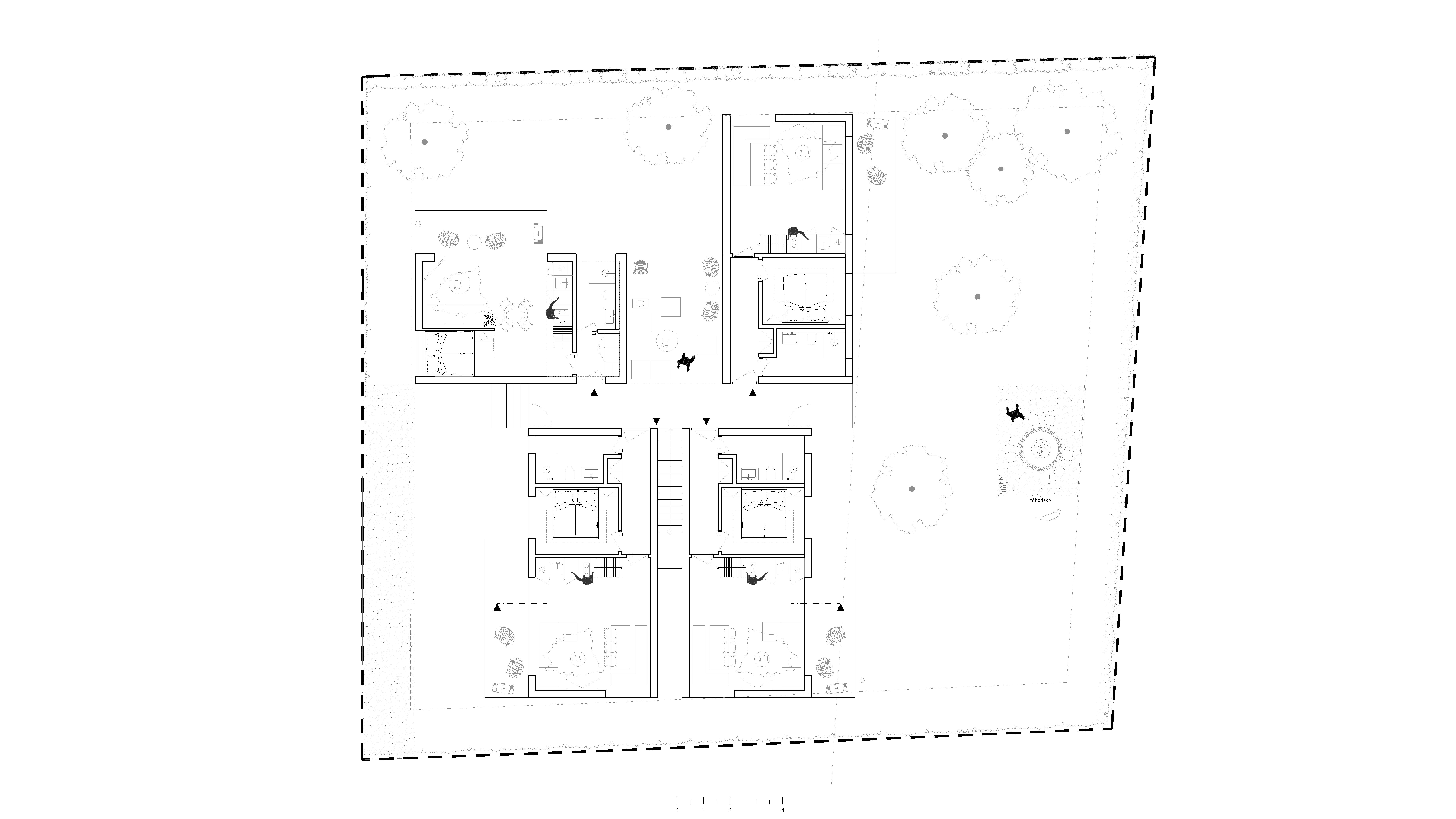
čtyři apartmány pod jednou střechou
rok: 2021-2022 lokalita: Velká Lomnica typ: rezidenční, šikmá střecha, apartmány
Dispoziční řešení



charakteristický řez

axonometrie návrhu

Projektová dokumentácia pre stavebné povolenie je vypracovaná s dôrazom na vysokú mieru realizačnej detailnosti. Obsahuje všetky nevyhnutné informácie pre získanie územného / stavebného povolenia, vrátane vyjadrení a iných administratívnych dokumentov. Zvláštnu pozornosť venujeme aj dôležitým stavebným detailom, ktoré sú kľúčové pre úspešnú prípravu a následnú realizáciu stavby. Naším cieľom je poskytnúť komplexný a precízny súbor materiálov, ktorý zabezpečí nielen formálne schválenie, ale aj efektívnu a bezproblémovú realizáciu projektu.
Projektová dokumentácia obsahuje
- Technické a sprievodné správy všetkých častí
- Zastavovací plán osadenia stavby na pozemok
- Podklad pre geodetické zameranie a katastrálne vyňatie
- Koordinačnú situáciu pripojení rodinného domu k inž. sieťam
- Architektonicko stavebné riešenie v realizačnej podrobnosti
- Statiku nosných konštrukcií v realizačnej podrobnosti so všetkými výstužami a tvarmi
- Projekt vodovodov a kanalizácii v realizačnej podrobnosti + prípojky na siete
- Projekt vykurovania v realizačnej podrobnosti
- Projekt elektroinštalácií, bleskozvodov, projekt elektrickej prípojky a schémy rozvádzača
- Projekt centrálnej alebo decentrálnej rekuperácie v realizačnej podrobnosti
- Projekt protipožiarneho zabezpečenia stavby
- Energetické hodnotenie stavby v triede A0
Výstupom projektovej dokumentácie je 5 tlačených sád a dokumentácia v pdf.
Keďže každý stavebný úrad postupuje podľa svojich zvyklostí a kreatívnych nápadov, počas celého trvania procesu získavania stavebného povolenia máte k projektu našu plnú podporu vo forme konzultácii.
Jak probíhá výběr a úprava katalogového domu
Dům si můžete vybrat z naší nabídky. Ověříme vhodnost pro vaši nemovitost a rozpočet. Nejprve potřebujete informace o zónování, data o sítích a (v případě šikmého pozemku) geodetické zaměření.
Umíme upravit projekt podle vás — dispozice, okna, technologie, materiály. Rozsah a cena změn jsou dohodnuty předem.
Vypracujeme kompletní balíček dokumentace pro stavební povolení:
- Architektura (půdorysy, sekce, pohledy, posezení)
- Statika, elektro, voda, topení, energie
Projekt zohledňuje všechny normy a podmínky územního plánu.
Jak se provádí návrh rodinného domu
Setkáme se, prohlédneme si spiknutí a přijmeme vaše nápady. Zašleme vám dotazník a vy připravíte vizuální inspirace. Poskytnete také potřebné dokumenty o zemi (územní informace, inženýrské sítě, geodetické zaměření).
Vyvíjíme design s ohledem na funkci, styl, zápletku a rozpočet. Následuje konzultace, kde doladíme podrobnosti podle vašich připomínek. Výsledkem je závěrečná studie s půdorysy, vizualizacemi a koncepcí domu — dodávaná jako tištěná brožura.
Vytvoříme technickou dokumentaci (výkresy, sekce, detaily). Po vašem souhlasu jej předáme odborníkům (statika, elektro, voda, požární bezpečnost). Poté projekt dokončíme do finálního balíčku k odeslání do kanceláře.
Jak se provádí interiérový design
Osobně nebo online projdeme vaše očekávání, rozpočet, styl a funkční požadavky. Získáme základy (půdorys, fotografie) a vizuální inspirace.
Navrhneme ideální uspořádání nábytku, funkčních zón a koncepce stylu (barevné schéma, materiály, náladové desky).
Připravíme realistické vizualizace. Po konzultaci vyladíme návrh dle Vašich připomínek — od materiálů až po osvětlení.
Připravujeme technickou dokumentaci pro realizaci — elektroinstalace, elektroinstalace, podlahy, obklady, osvětlení. Zahrnuty jsou také konkrétní doporučení produktů.
Pokud máte zájem o nábytek na zakázku, připravíme podrobné tesařské výkresy s rozměry, materiály a technickým řešením.
Nakonec zpracujeme předběžný rozpočet — včetně nábytku, osvětlení, podlah, dlažby a prací. Zahrneme také doporučené produkty nebo cenové úrovně.
Ozveme se na ověřené dodavatele a zpracujeme srovnání jejich nabídek. Doporučujeme nejvhodnější podle ceny, kvality a termínů.
Na požádání zajistíme odborný dohled při realizaci — konzultace s dodavateli, kontrolu detailů a shodu s projektem.



.avif)


VERTIK.avif)

YX.avif)


